
Просмотреть или сохранить оригинал: Необходимо ли делать гидроизоляцию...
Перепланировка квартиры в большинстве случаев затрагивает ванную или санузел. При расширении или переносе данных помещений, на полы в них необходимо производить укладку гидроизоляционного покрытия.
В соответствии с СНиП 2.03.13-88 «Полы» ванные комнаты или туалеты после перепланировки обязаны в конструкции пола иметь гидроизоляцию. Таким образом, при увеличении ванной комнаты или туалета Вы должны демонтировать старые полы в расширенной зоне и устроить на их месте уже новые с гидроизоляцией.
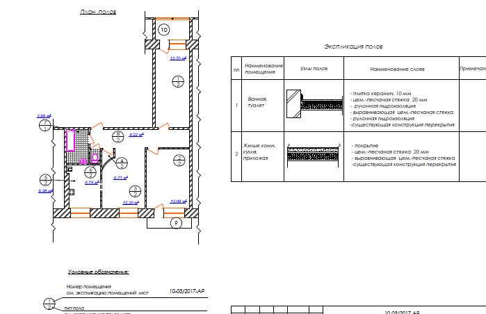
На данный момент существует два основных вида гидроизоляции полов: рулонная и обмазочная (на фото проекта 1 и 2 представлен разрез пола). В последнее время всё большее распространение получает именно обмазочная. Дело в том, что рулонную гидроизоляцию необходимо укладывать на выравнивающий слой стяжки. Если укладывать её непосредственно на перекрытие, то под нагрузкой от верхних слоёв пола она может порваться о незначительные выступы неровного перекрытия и в этом месте при заливе смогут происходить протечки. Обмазочная гидроизоляция ввиду своей технологии не требует устройства дополнительного слоя такой выравнивающей стяжки. Необходимо при оформлении акта на скрытые работы, сослаться на сертификат соответствия используемого материала (фото 3 и 4 сертификаты на рулонную и обмазочную гидроизоляцию). Укладка гидроизоляции оформляется актом на скрытые работы. Актирование работ по гидроизоляции призвано подтвердить, что перепланировка квартиры произведена с соблюдением всех установленных норм и правил и в соответствии с проектом перепланировки. Без предоставления акта, приемочная комиссия, которая будет принимать готовый ремонт, не утвердит изменения. Более того, инспектор имеет право потребовать вскрытия пола для предъявления гидроизоляционного слоя. В случае обнаружения нарушений при проверке скрытых работ, комиссия устанавливает срок для их исправления, а по его истечении проводит повторную проверку. Данные акты должна предоставить строительная компания которая проводила ремонтные работы и они же должны подписать его и поставить свою печать. Причем у этой организации обязательно должен быть допуск СРО - он дает право на данные работы. Обычная бригада строителей, работающая без допуска СРО, не имеет права освидетельствования каких-либо скрытых работ. Помимо подрядчика, акт скрытых работ подписывает сотрудник проектной организации, который осуществляет авторский надзор согласно обязательствам компании. При этом он должен проверять правильность укладки гидроизоляции до закрытия ее напольным покрытием. Отметим, что перед подписанием акта необходимо удостовериться, что уложенная гидроизоляция "работает". Для этого проводятся испытания: покрытие заливается на несколько часов водой для определения возможных протечек, хотя по практике строительные компании это не делают. Неправильная укладка гидроизоляционного слоя, или его отсутствие, грозит неприятностями, в частности, протеканием воды на ниже расположенный этаж. В случае выявления самовольной перепланировки ванной и санузла, вас обяжут выплатить штраф и узаконить ее в установленном порядке (если это возможно, а если нет - вернуть все как было).
В большинстве случаев для согласования "задним числом" также потребуется разработка технического заключения о допустимости и безопасности ранее выполненных работ, однако в некоторых случаях, можно попробовать узаконить все и без разработки проекта, в упрощенной форме и с приложением актов скрытых работ на гидроизоляцию. Если у вашей бригады нет допуска СРО, не отчаивайтесь - мы постараемся оказать помощь в этом вопросе, выполним функцию тех. надзора, возьмем ваших рабочих на субподряд, проверим правильность укладки гидроизоляционного слоя и заактируют выполненные работы. (копия акта 5)
ОСТАЛИСЬ ВОПРОСЫ И ЖЕЛАЕТЕ ПОЛУЧИТЬ НА НИХ ОТВЕТЫ - ЗВОНИТЕ +7(904)063-23-01 ЭЛ. ПОЧТА pereplann@mail.ru




